Eindhoven
Ganserd 6
- 155 m2
- 283 m2
- 3
- A +
5621 GC Eindhoven
Deze jaren ’30 tussenwoning is op zoek naar nieuwe bewoners. De woning heeft drie slaapkamers, een ruime badkamer en een enorm diepe achtertuin die veel mogelijkheden biedt. De koper dient rekening te houden met moderniseringskosten.
De woning is gelegen in stadsdeel Woensel-Zuid in de buurt Groenewoud. Deze buurt is beter bekend als Woensel-West. De locatie is top, want alle denkbare voorzieningen zijn op korte afstand gelegen. Op loopafstand is een basisschool, een gezondheidscentrum en diverse winkels. Strijp S en het gelijknamige station zijn bovendien vlot bereikbaar. Ook de binnenstad van Eindhoven is eenvoudig met de fiets of de auto te bereiken.
BEGANE GROND
In de hal bevindt zich de meterkast (voorzien van vernieuwde groepenkast) en het toilet. De ruime, geheel betegelde toiletruimte beschikt over een wandcloset en een fonteintje.
De doorzon woonkamer is voorzien van een verdiepte kelderkast onder de trap en heeft hiermee veel praktische bergruimte. Middels een loopdeur is de achtertuin bereikbaar.
De dichte keuken is voorzien van een tegelvloer en een eenvoudig keukenblok. Ook vanuit de keuken is de achtertuin bereikbaar middels een loopdeur.
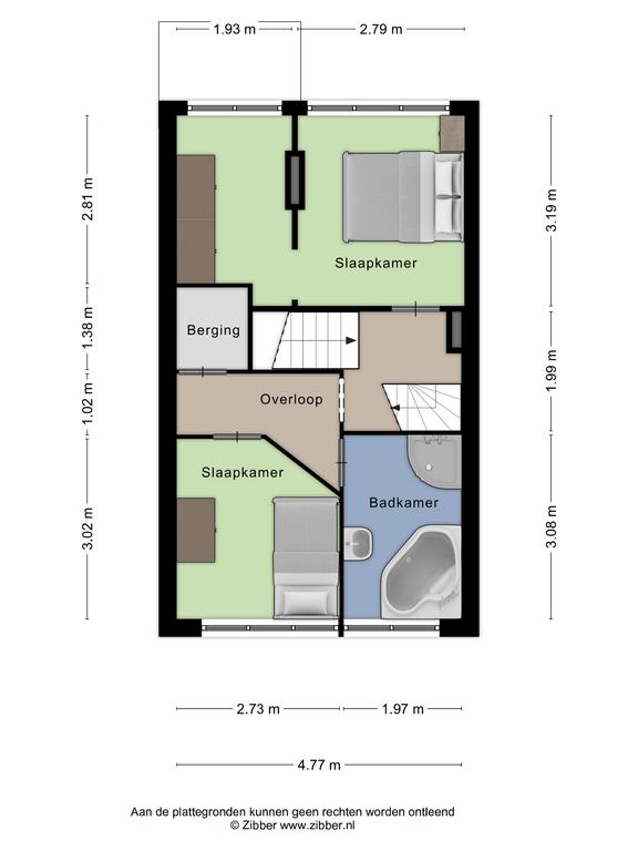
EERSTE VERDIEPING
De overloop biedt toegang tot twee slaapkamers, de badkamer, een wasruimte en de trapopgang naar de tweede verdieping.
De slaapkamer aan de voorzijde van de woning is voorzien van een grote raampartij waardoor de ruimte profiteert van een ruime lichtinval. De andere slaapkamer is gelegen aan de achterzijde van de woning. Dit is een bijzondere ruimte, met een doorgang naar een extra kamer/inloopgarderobe.
De badkamer is geheel betegeld en voorzien van een hoekligbad, een douchecabine en een wastafelmeubel.
De wasruimte (voorheen badkamer) is geheel betegeld.
TWEEDE VERDIEPING
Via een vaste trap is de tweede verdieping bereikbaar. Op de voorzolder bevindt zich een berging en de opstelling voor de c.v.-ketel (Vaillant). De ruime slaapkamer is voorzien van een dakkapel en heeft bergruimte achter het knieschot.
TUIN
De woning beschikt over een opvallend diepe achtertuin met een stenen berging welke is voorzien van elektra. De tuin heeft bovendien een vrije achterom.
ALGEMEEN
– jaren ’30 woning in populaire woonomgeving;
– kunststof kozijnen en ramen met isolatieglas;
– vernieuwde groepenkast;
– drie slaapkamers;
– dakkapel aan de achterzijde van de woning;
– diepe achtertuin (+/- 20 meter);
– koper dient rekening te houden met moderniseringskosten;
– (verplichte) notariskeuze Marks Wachters Notarissen.
Op zoek naar een vergelijkbare woning? Bekijk ons actuele aanbod of neem contact met ons op.
Of je nu wilt kopen, verkopen of gewoon meer wilt weten. Neem contact op en voel je thuis bij elke stap in het proces.
Een bezichtiging plannen is heel eenvoudig. Zie je een woning die je graag wilt bekijken, dan kun je ons direct bellen of mailen om een afspraak in te plannen. Vaak kun je ook via Funda of onze eigen website een verzoek tot bezichtiging indienen. Wij stemmen samen met jou en de verkoper een geschikt moment af en zorgen dat je alle tijd krijgt om de woning rustig te bekijken. Zo kun je jouw vragen stellen en een goed gevoel krijgen bij het huis voordat je een volgende stap zet.
Nadat je een bod hebt uitgebracht op een woning, legt de verkoopmakelaar dit voor aan de verkoper. Die kan het bod accepteren, afwijzen of met een tegenbod komen. Zodra er overeenstemming is over de prijs én de voorwaarden, wordt alles vastgelegd in een koopovereenkomst. Daarna volgen nog de ontbindende voorwaarden, zoals de financiering of een bouwkundige keuring. Wij zorgen ervoor dat je precies weet welke stappen er komen en houden je gedurende het hele proces goed op de hoogte. Zo sta je nooit voor verrassingen en kun je met vertrouwen uitkijken naar de sleuteloverdracht bij de notaris.
Een verkoopmakelaar werkt altijd in opdracht van de verkoper en behartigt dus uitsluitend diens belangen. Dat betekent dat wij als verkoopmakelaar zorgen voor de beste verkoopprijs, de juiste voorwaarden en een soepel proces voor de verkopende partij. Als koper is het belangrijk om te weten dat wij níet jouw belangen vertegenwoordigen. Daarom raden we altijd aan om een eigen aankoopmakelaar in te schakelen. Die staat volledig aan jouw kant, denkt mee over de juiste strategie en voorkomt belangenverstrengeling. Zo weet je zeker dat er iemand naast je staat die zich 100% inzet voor jou.